обо мне и моей бригаде

Строганов Кирилл
Я занимаюсь ремонтом более 15 лет. Самое приятное для меня - солидный список довольных клиентов.
Моя главная задача - организовать процесс ремонта таким образом, что бы проходил легко и приятно при взаимодействии со мной и моей командой. Я максимально открыт для вас.
Помогу подобрать современный материал, как дорогой так и не дорогой.
Оптимизирую смету. Многолетний опыт позволяет мне предложить Вам оптимально снизить стоимость ремонта без потери качества даже в классе премиум.
Мне удалось собрать отличную команду, которая работает слаженно. Это позволяет четко выдерживать сроки работ, не выходить за рамки согласованной сметы и экономить ваше время и силы.
К своей работе мы подходим с удовольствием начиная от создания дизайн проекта и заканчивая советами по расстановке мебели и декору помещения.
Дизайн больших однокомнатных квартир
Дизайн однокомнатной квартиры с лоджией
Многие из нас, возможно, хотели бы иметь большое жилье – дом или вместительную квартиру. Однако не каждая семья может себе позволить сотню-другую квадратных метров жилой площади. Эта статья для тех, кто живет в однокомнатной квартире, и хочет сделать из нее по-настоящему комфортное, стильное и функциональное жилище. Поехали!
Лучший дизайн проект однокомнатной квартиры
Поистине, вариантов обустройства «однушки» масса, и каждый читатель может выбрать проект по душе, исходя из своих потребностей. Кому-то важен стиль в каждой детали интерьера, кто-то радеет за максимальную вместимость квартиры, и будет рад вариантам устройства шкафов, кладовых и всевозможных систем хранения. Иного читателя заинтересует, как визуально увеличить квартиру, а может даже обустроить в ней две комнаты (или наоборот, превратить квартиру в студию). Лучшие интерьеры однокомнатной квартиры собраны в этой статье.
Вариант квартиры-студии в светлых тонах
10 лучших дизайн проектов однокомнатных студий

Первый проект – для любителей света и простора. В этой квартире все зоны визуально объединены со смежными. Стена между гостиной и кухней отсутствует, а дверь в ванную комнату сделана прозрачной. Кроме того, часть гостиной отгорожена несплошной перегородкой, за ней располагается спальня. Перегородка скрывает кровать от посторонних глаз, при этом оставляя ощущение простора и единого пространства квартиры.
Функциональное зонирование однокомнатной квартиры-студии
Спальная зона за перегородкой-«жалюзи»
ЭТО ВАЖНО: в условиях небольшого пространства стены и перегородки внутри квартиры визуально уменьшают пространство. Решетчатая перегородка лишена этого недостатка, при этом она выполняет свою функцию на 100%.

Ванная комната являет собой стильный симбиоз всего необходимого

Проект квартиры-студии 40 кв. м.
Переходим к следующему проекту, который примечателен немного другой организацией пространства.

Здесь также всего 40 квадратных метров, на которых разместились и кухня, и гостиная, и рабочая зона со спальным местом. Причем, кухня с обеденной зоной отделены от гостиной частичной перегородкой, а кровать находится как бы в гостиной, но отделена от нее прозрачной перегородкой. Такое решение создает ощущение отдельных комнат, не сжимая при этом и без того небольшое пространство. Интерьер выглядит свободным и воздушным, что, несомненно, порадует обитателей этой квартиры.

Гостиная квартиры-студии

Удобная организация кухни и обеденной зоны

Стеклянная перегородка, отделяющая «спальню»

Стильное оформление ванной комнаты
Продолжит «хит-парад» удачных решений для однокомнатной квартиры следующий проект. В нем во главе угла стоит спальня, с сохранением функциональности остальных зон жилища.

Квартира-студия с просторной спальней
Здесь также присутствует стеклянная перегородка между гостиной и спальней, однако последняя значительно больше за счет уменьшения площади кухни. Квартира выглядит светлой и просторной, в ней легко дышится, при том, что этот проект также рассчитан на площадь 40 «квадратов.

Просторная спальня
СОВЕТ: выделите больше пространства и внимания той зоне, в которой вы обычно проводите больше своего времени.

Компактная обеденная зона

Вид из прихожей и обустройство санузла

Перепланировка однокомнатной квартиры под студию
Следующий дизайн проект создает ощущение, что в квартире гораздо больше квадратных метров, чем есть на самом деле.

Топ дизайн проект большой однокомнатной квартиры
На самом деле все это поместилось на площади в 45 «квадратов». Устройство стеллажей за экраном позволяет оптимально использовать пространство, а обилие белого цвета создает ощущение дополнительного пространства. Кухня объединена со столовой и гостиной, однако при необходимости может быть закрыта сдвижной перегородкой. Зонирование в помещении гостиной осуществляется в основном расстановкой мебели и цветовым решением.

Зона отдыха в гостиной

Светлая кухня квартиры-студии

Отгорожена полноценная спальня

Белый цвет визуально увеличивает размер ванной комнаты
Дизайн больших однокомнатных квартир
Дизайн однокомнатной квартиры с лоджией

Планировка однокомнатной квартиры 45 кв. м.
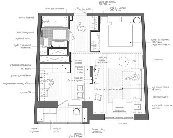
На очереди – проект однокомнатной квартиры в скандинавском стиле.

Топ дизайн проект маленькой однокомнатной квартиры
Здесь применено очень удачное решение по организации пространства в небольшой квартире – это кровать «на втором этаже». Это, безусловно, экономит пространство комнаты, позволяя на той же площади разместить и гостиную зону. Кухня в этой квартире является полноценным отдельным помещением, что может многим прийтись по вкусу.

Уютная квартира в скандинавском стиле

Вместительная кухня

Дизайн интерьеры однокомнатных квартир фото
В отличие от предыдущих проектов, следующий пример обладает яркими, сочными акцентами.

Это снова однокомнатная квартира-студия, которая позволила на небольшой площади с комфортом разместить кухню, обеденную зону и гостиную, а также выделить место под полноценную спальню. Светлые тона визуально увеличивают пространство, а сочные цвета отдельных элементов интерьера разбавляют общую концепцию и поднимают настроение.

Симбиоз гостиной, столовой и кухни
СОВЕТ: добавление ярких элементов – отличный дизайнерский ход, главное, чтобы они были сбалансированы.

П-образная рабочая зона кухни позволяет максимально использовать пространство

Вместительная спальня, превращающая «однушку» в полноценную двухкомнатную квартиру
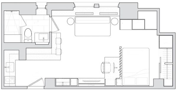
И снова – очень достойный дизайн проект квартиры-студии, разместившийся на 45 квадратных метрах.

Здесь есть все – и просторная гостиная, и функциональная кухня, и спальная зона, элегантно скрытая за шторами. Как и в большинстве небольших квартир, для экономии пространства в ход пошли встроенные стеллажи и полки. Барная стойка является одновременно обеденным столом и разделителем зон. При создании проекта упор сделан на микс скандинавского и современного стилей.

Стильная барная стойка и организация кухонного стеллажа

Из гостиной видна спальня, но только если ее обитатели пожелают

Подиум спальной зоны сделан по соображениям вместимости – в нем расположились ящики для постельного белья и других вещей

Кухня с интересным цветовым решением

Контраст обстановки с напольной плиткой и подбор оснащения ванной комнаты

Балкон выполняет функцию дополнительной зоны отдыха

План помещения квартиры-студии
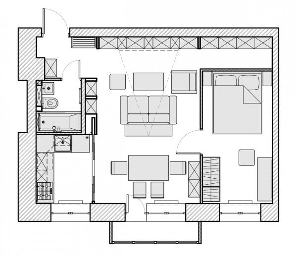
И сразу – еще один проект с похожим решением отделения спальни от студии.

При создании проекта дизайнер взял за основу минимализм, что благотворно сказалось на результате. Оттенки дерева настраивают на спокойный лад, а желтые и синие цвета отдельных элементов делают квартиру интересной и запоминающейся. Кровать здесь, как и в предыдущем проекте, расположилась на возвышении, которое еще и выполняет функцию вместительного хранилища.

Кровать достаточно высоко, что позволило организовать вместительные ящики под ней

Штора выгодно отделяет спальную зону от гостиной
ЭТО ВАЖНО: размещение кровати на подиуме позволяет использовать вертикальное пространство комнаты, организовав в подиуме место для хранения.
А что если вам необходимо в однокомнатной квартире выделить обособленное пространство ребенку? На этот случай подойдет следующий проект.

Естественно, площадь для детской придется забрать у гостиной и кухни, объединив их в одно пространство. Важно это сделать с сохранением комфорта, как в этом проекте. Уютная гостиная, рядом с которой расположилась обеденная зона и кухня с веселыми элементами. Детская же создана по морским мотивам и легко вместит двоих детей. Вот что значит настоящая оптимизация пространства!

Такой интерьер согреет в любую погоду

Дизайн больших однокомнатных квартир
Дизайн однокомнатной квартиры с лоджией
Кровать в морском стиле – для юных путешественников

Организация игрового пространства для самых маленьких

Проект компактной однокомнатной квартиры студии с отдельной детской

Прихожая, выдержанная в общем стиле квартиры

Вместительный санузел
На очереди – еще одна однокомнатная квартира для семьи с детьми.

Зона детской отгорожена частично стеной, частично – стеллажом и полупрозрачной перегородкой и так же вмещает два спальных места, но теперь – на разных кроватях по обе стороны от входа в детскую. Вся стена комнаты отдана под вместительный шкаф. Организация света в этом проекте, несомненно, подарит ощущение тепла и уюта в любой самый пасмурный и холодный день.

Слева от входа в детскую расположились одна из кроватей и письменный стол

Вторая кровать – по другую сторону от входа

Ванная с хитом небольших квартир – душевой кабиной

Обеденная зона и множество рабочих поверхностей кухни
Однокомнатную квартиру можно превратить в шедевр, главное – желание!



Услуги по ремонту
Заказчикам
Компания

Контакты
Ответы на вопросы